A lo largo de estos años hemos realizado un sin fin de proyectos arquitectónicos, algunos por una razón u otra no pudimos construir, pero creemos que vale la pena compartirlos, para esto hemos ampliado nuestra pagina web para incluir esta nueva sección.

Creemos que es importante entender el proceso que conlleva realizar una obra construida y que para esto se necesita un proyecto arquitectónico a detalle, varios estudios de ingenierías, presupuesto, cronograma, y la construcción en si, estos proyectos muestran esa parte de nuestro trabajo, la primera parte de cualquier obra construida, el diseño arquitectónico, esperamos que les guste.

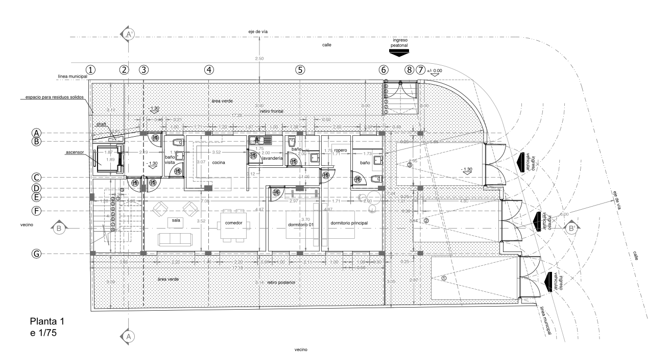
VIVIENDA HUAJCHILLA / 2024

Para el diseño de un proyecto unifamiliar en la zona de Huajchilla, la situación alargada del terreno y la normativa de la zona, obligó a que la casa se pareé hacia uno de los retiros laterales y que el ingreso principal sea en el otro.

La casa cuenta con dos niveles, el primero contiene el living, comedor, cocina y zona de servicio, en la parte posterior se emplazo un parrillero abierto con todas las comodidades y con acceso directo desde la cocina.

En el segundo nivel se encuentran las habitaciones, baños y la sala familiar con terraza hacia el parrillero y con la mejor vista al paisaje de la zona de toda la casa.

La casa está diseñada con un estilo muy moderno pero que tiene algunos ecos del pasado expresados en la puerta principal y sobre todo en dos cubiertas a cuatro aguas de shingle, que permiten que la habitación principal, tenga un techo alto siguiendo la forma de la cubierta, la habitación también cuenta con una chimenea que comparte ducto con la del living, dandole a la misma mucha calidez que fue uno de los requisitos de la familia.

TIPO: Vivienda Unifamiliar

ESTADO: Diseño

AÑO: 2024

ARQUITECTOS: Borja de Mesa


VIVIENDA M / 2023

En este proyecto de una vivienda unifamiliar de dos plantas con un gran jardín, se trabajará una amplia sala de estar con grandes ventanales que permitirán la entrada de luz natural y una vista del jardín. El diseño de interiores se mantendrá simple y elegante y con una paleta de colores neutros.

La cocina será moderna y funcional, con electrodomésticos de última generación y una isla central para facilitar la preparación de alimentos. El comedor estará ubicado junto a la cocina y tendrá acceso directo al jardín, lo que permitirá disfrutar de comidas al aire libre.

En la planta superior, habrá tres dormitorios, cada uno con su baño privado y armarios empotrados. El dormitorio principal tendrá un balcón que ofrecerá vistas al jardín y proporcionará un espacio tranquilo para relajarse. Además, habrá una sala de estar en la planta superior para que los residentes puedan disfrutar de un espacio adicional de descanso.

El jardín será un espacio amplio y bien cuidado con áreas de pasto y una variedad de plantas y flores. Habrá una zona de estar al aire libre con muebles cómodos y un parrillero integrado a la casa.

TIPO: Vivienda Unifamiliar

ESTADO: Construcción

AÑO: 2023

ARQUITECTOS: Borja de Mesa


ESPACIO COWORK ePC-UCB / 2016

El Plan Director del nuevo Campus de la Universidad Católica Boliviana San Pablo es concebido como un proyecto muy orgánico que se acomoda de manera natural a un relieve muy abrupto. En su frente principal se ubica el nuevo Espacio Cowork ePC-UCB, directamente conectado con la calle. La forma de asentamiento responde a la pendiente y forma del terreno: se acomoda de manera natural al relieve, estableciendo su programa en plataformas escalonadadas. Las formas son muy envolventes, creando un espacio urbano compartimentado en áreas de reunión de diferentes escalas muy ligadas a los interiores del conjunto.

Dicho conjunto está compuesto por dos volúmenes, uno de forma circular, el NIDO, que contendrá el ingreso principal desde el Campus y el distribuidor de flujos, y otro, el edificio COWORK, con varios ingresos, que envuelve al anterior, dando su fachada principal a la avenida San Ramón.

La idea fuerza que define la estructura del programa es el corte longitudinal del edificio: diversas plataformas que se asientan en la pendiente, logrando diferentes ingresos al edificio y minimizando el movimiento de tierras. Se consigue de este modo un conjunto de dos edificios capaces de funcionar de manera muy independiente en cada una de sus plataformas.

A su alrededor el espacio urbano se extiende en dos plazas principales y múltiples áreas de menor tamaño destinadas a albergar eventos de distinta proporción, desde encuentros culturales a reuniones de trabajo. Se trabaja especialmente la vegetación y el uso del agua, proporcionando una atmósfera fresca, agradable y sonora.

En lo alto del cerro se ubica la Capilla, parte del programa que se decidió separar y aislar del conjunto principal, para darle un ambiente más sosegado y tranquilo.

El ingreso más directo al edificio se realiza a través de la Avenida San Ramón. Constituye el previo del conjunto COWORK: una gran plaza escalonada donde realizar eventos gastronómicos, conciertos o pequeñas reuniones al aire libre. Las gradas que suben al nivel superior funcionan como espacios para sentarse y están acompañadas por áreas ajardinadas y una fuente con agua. Es el frente principal del conjunto. Desde esta plaza veremos la fachada del edificio COWORK en sus tres niveles: cafetería, aula magna y espacio cowork. Se trabaja la superficie de la envolvente, proporcionando superficies acristaladas e interiores diversos (cafetería, madera, murales, torre de escalada, mobiliario) con el propósito de comunicar un interior lleno de actividad, un polo atractor para el usuario.

Lo primero que nos encontramos en el interior del edificio es la CAFETERÍA o TEST-KITCHEN. Se trata de un área a la que se accede a través de un pequeño vestíbulo cubierto. La cocina de este TEST-KITCHEN estará abierta visualmente a las áreas de restauración, para hacer la experiencia gastronómica más completa.

En este espacio el mobiliario es muy importante. Serán grandes islas de trabajo donde se pueda experimentar en la función docente del espacio y cocinar para su uso como restaurante y cafetería.

Tendremos una gran barra que separe las áreas de cocina y mesas, y otro espacio de recepción. El espacio dispondrá así mismo de área de baños, cambiador de personal, cámara frigorífica  y depósito para insumos.

Al fondo del espacio está la escalera y ascensor que conectan directamente con el Aula Magna, pudiendo complementar a esta última el uso de la cafetería para posibles eventos que se realicen en la planta superior.

PLAZA Y AULA MAGNA

Desde el previo ya descrito subirá una vía para vehículos y peatones que entrará en el resto del Campus, conectando con el NIDO y otra auxiliar, colindando con el vecino, para servicios.

En la cubierta de la cafetería encontraremos la PLAZA, un espacio ajardinado que supone un primer zócalo donde se asienta el edificio COWORK.

Se trata del lobby exterior del AULA MAGNA, y tiene un uso destinado a ampliar el área de esta última, en caso de eventos que necesiten un uso al aire libre, conectado directamente con la calle.

A través de este espacio ingresamos al AULA MAGNA, por un vestíbulo, conectado con las plantas inferior y superior. Se trata de un auditorio para más de 180 personas.

Tiene estructura de anfiteatro en gradas, con mesas y sillas, con  tres pasillos de circulación, que envuelven al escenario, donde habrá pizarras y espacios para proyecciones. La función del espacio será docente, aunque eventualmente pueda acoger representaciones, proyecciones, conciertos u otros.

En la parte posterior del graderío se ubican las cabinas de proyección y traducción, dos depósitos, un espacio para camerino y baño y los baños de uso público.

En la fachada principal, continuará la escalera hasta la planta superior de COWORK.

NIDO: INGRESO

Subiendo por la calle del Campus llegamos al NIDO, segundo edificio del complejo, donde se ubica el ingreso principal.

El edificio tiene una estructura circular con un patio central a partir de la planta primera, dando al vestíbulo una cubierta de vidrio, proporcionando iluminación. Dispondrá de un mostrador de información, donde se oriente al visitante, indicándole el camino para el área que esté buscando.

El primer espacio, ingresando a la derecha, será un área abierta, versátil, que pueda acoger los distintos espacios de alquiler que se ofrezcan, pudiéndose alterar la configuración interior según el caso. Tiene una conexión muy directa con el ingreso puesto que debe ser un área atractiva para darle usos versátiles, relacionados con la experiencia COWORK.

A la izquierda del ingreso se ubica el espacio destinado a la TIIMIAKATEMIA. Se trata de un espacio conectado con el edificio COWORK: aula-pasarela-reuniones. Al exterior junto al ingreso se complementa con una sala para coaches. Con lugar para seis mesas grandes el aula tendrá muros para colocar pizarras y una estructura muy abierta, que pueda ser modificada según las necesidades. La pasarela tiene dimensión suficiente para una pequeña salita de reunión.

En el edificio COWORK tendremos las salas de reuniones para los alumnos de la tiimiakatemia.

NIDO: DISTRIBUIDOR

Una función importante del vestíbulo del NIDO es separar flujos de personas a través de las pasarelas. Dos pasarelas que conectan con el edificio COWORK, separadas por un estanque de agua, permiten el ingreso directo al área ACADÉMICA y al espacio COWORK. La primera conecta con el núcleo de comunicaciones que sube a las dos plantas superiores y la segunda ingresa en el cowork, separando a éste virtualmente en dos.

COWORK

Configurado como un espacio diáfano y versátil, el espacio COWORK será capaz de dar cabida a distintos usos. El mobiliario definirá el espacio, y debe poder cambiarse para poder generar distintas dinámicas.

Sobre el espacio del AULA MAGNA, tendremos un segundo graderío, estructurado en 7 plataformas. Se trata de una repetición de la planta inferior, pero con un aspecto mucho más informal y distendido. Albergará espacios de trabajo, sillones, mesas para grupos, pero a la vez orientados hasta un espacio que pueda funcionar como posible escenario para charlas y conferencias. Las circulaciones serán múltiples, permitiendo el uso independiente de cada plataforma.

En su espacio interior este graderío ocultará áreas de depósito y baños. La idea es que el mobiliario de esta planta se pueda ocultar en el depósito para permitir un uso distinto del lugar en ocasiones especiales. El baño permite que se pueda independizar esta zona, a través de cortinas, funcionando al margen del uso del resto de la planta (tendría acceso desde la PLAZA o desde la pasarela que llega del NIDO).

Empotrados en el mueble del graderío tendremos además casilleros para guardar material de trabajo, una estantería cerrada con vidrio para publicaciones y una kichenette para calentar bebidas o comida.

En esta zona disponemos de un ascensor que viene de la planta de CAFETERÍA y que tendrá cuatro paradas: cafetería, aula magna, plaza y cowork. A partir de esta planta de COWORK se convertirá en una torre interior con dos funciones: estructural para sostener la cubierta y muro de escalada. Rodeando el ascensor tendremos un resbalín. La función de estas últimas atracciones es la de servir como distensión después de un largo periodo de trabajo y para organizar dinámicas de grupo.

El resto de la planta del COWORK estará salpicada por mobiliario muy versátil que dé lugar a espacios de trabajo de muy distinta índole. Mesas con sillas para puestos de trabajo, grupos, sillones con mesitas, etc, dispuestas en un orden que pueda ir cambiando las veces que sea necesario.

El resultado es una sucesión de espacios de diferentes escalas que posibilitan también diferentes dinámicas de trabajo.

ÁREA ACADÉMICA

En la planta superior del Nido y las dos plantas superiores del Edificio Cowork, a través del núcleo de comunicación antes señalado, encontramos el Área ACADÉMICA.

El núcleo dispone de dos ascensores y escaleras, y tiene asociado un bloque de baños: dos sexos y adaptado para discapacitados.

La estructura de las 6 aulas es similar: graderío con de 3 a 6 filas de mesas y asientos, paredes frontal y laterales con pizarras para múltiples exposiciones y muro doble en los costados, para albergar depósitos de apoyo y accesos.

Las aulas disponen de uno, en el caso de las de menor tamaño, hasta tres accesos, algunos en la zona posterior para garantizar el ingreso de alumnos sin interferir de manera directa el desarrollo de la clase.

El aula tendrá una estructura escalonada, como anfiteatro, y tendrá uno o tres pasillos de distribución. El espacio del docente tendrá la altura suficiente para albergar plano de proyección, superior, y pizarras en la parte inferior. Los laterales y fondos del aula tendrán planos para ubicar pizarras de trabajo. Las aulas tendrán pocas ventanas al exterior, para favorecer la concentración pero estarán bien ventiladas.

El cielo falso seguirá la pendiente del graderío del aula y tendrá escalones para tamizar la luz y que no moleste en el área de proyecciones.

La planta superior del Nido alberga las Aulas 1 y 2, y el edificio Cowork las 3 y 4 en planta primera y 5, y 6 en planta segunda.

En el NIDO además habrá un espacio de reunión cerrado con mamparas de vidrio y varios espacios abiertos con mesas para trabajo. En el centro del volumen tendremos el patio.

En la cabeza del edificio COWORK tendremos dos aulas planas, en ambas plantas, polifuncionales: docencia, apoyo a la administración o instalaciones. Son percibidas como una caja suspendida dentro del edificio, con su piel de vidrio retranqueada con respecto a fachada.

EXTERIORES

Todo el espacio circundante al edificio tiene el propósito de crear áreas estanciales que repitan el esquema interior: diferentes escalas, múltiples espacios de relación.

En los dos extremos del complejo se sitúan tres espacios de mayor importancia:

  • El previo a la cafetería, como atrio de bienvenida al Campus y al Espacio Cowork.

  • La plaza sobre elevada que da ingreso al Aula Magna.

  • El atrio en la cabeza del edificio Cowork, junto al área académica.

Los espacios tendrán lugares para sentarse y áreas verdes arboladas.

Además, mezclados con lo anterior, se ubican distintos espacios de reunión de menor escala.

Dos viarios recorren longitudinalmente el complejo:

  • Una vía principal, que da ingreso al interior del futuro Campus, y acceso directo a la Plaza del Aula Magna y el Nido.

  • Una vía de carácter secundario, de servicio que rodea al complejo por su cara posterior.

En el jardín posterior, la zona de menor acceso público se sitúa una instalación de SAUNA, en un nivel enterrado. Tendrá espacio para dos cambiadores con ducha y sauna de tipo finlandesa.

PAISAJE

Se hace un estudio detallado de las especies vegetales adecuadas al clima y espacio del proyecto. Se opta por una combinación de alto porte de hoja perenne, como eucaliptos, acacias y cipreses, con alguna especie de hoja caduca como es el ceibo, con otras de bajo porte como el pasto y flores verónica y margarita.

Se buscan varias tonalidades a lo largo del proyecto.

Además se sitúa una fuente de agua, con caída, junto a la cafetería y el ingreso de la vía al interior del Campus, para producir un sonido constante de agua, proporcionando una atmósfera agradable.

CAPILLA

En lo alto del cerro, distanciada del resto del proyecto, se ubica la Capilla del Espacio Cowork. Constituyéndose a futuro como la capilla del Campus será un lugar de paz y tranquilidad, alejado de la actividad universitaria.


CONCURSO TEATRO DE Santa Cruz / 2017


CONCURSO NACIONAL DE ANTEPROYECTOS

“Teatro Municipal Santa Cruz de la Sierra”.

Ubicado al Norte de Santa Cruz de la Sierra, sobre la Avenida Bioceánica, el teatro Municipal ocupará un lugar privilegiado en la ciudad. 

Cercano a la salida Norte, y con conexión directa a varios de los anillos que caracterizan el crecimiento de la ciudad, la parcela se sitúa en un lugar todavía vagamente inexplorado que, teniendo en cuenta los niveles de crecimiento de Santa Cruz, no tardará en colmatarse y consolidarse como el perfil de bienvenida para los visitantes y residentes de Santa Cruz. 

El reto que nos ocupa, por tanto, es diseñar esa nueva imagen de Santa Cruz, ligada a criterios de sostenibilidad, calidad del espacio público e inserción en el tejido urbano planificado para la zona. 

Para ello, se ha tenido en cuenta las orientaciones y el clima generalmente cálido de Santa Cruz, creando una plaza principal de entrada, cedida a la ciudad y abierta al Sur, que es dónde conservamos la mayor parte de la masa arbórea preexistente, el resto de árboles de porte existentes en la parcela con los que interfiere la pieza, se planean trasplantar al área de acceso donde se encuentra el volumen arbóreo principal. Esto se combina con la concepción formal del edificio: 

-       Retranqueamos los paramentos verticales de la línea de fachada para evitar el sol del Nord-Oeste.

-       Situamos en esta misma fachada núcleos de programa cerrados al interior del edificio y construidos con materiales de mayor inercia térmica.

-       Rodeamos la pieza con cables de fibra de vidrio que tamizan la entrada de luz pero permiten la ventilación, evitando el efecto invernadero en el interior y concediendo al edificio una envolvente que le de identidad y continuidad visual.

Además de lo anteriormente citado, hemos considerado importante proteger el espacio público principal del viento de Sur-Este (“Surazo”), y responder al tipo de vía construyendo una imagen global y coherente, colonizada con una pieza característica que albergará la función principal de auditorio. 

Formalmente el proyecto se resuelve en 5 niveles útiles, un auditorio principal de forma singular que los atraviesa, un segundo auditorio más pequeño que se entierra en el sótano y semisótano, y una pastilla longitudinal repetida en los diferentes niveles, que resuelve el programa de menor escala.

Los cinco niveles se sitúan de la siguiente manera:

-       Un zócalo principal elevado sobre la calle 3m cuya altura libre se ve controlada en los lugares oportunos por una plataforma intermedia que divide el espacio.

-       Una cubierta accesible que se transforma en parte del espacio público, conectada directamente con la calle en la parte en la que el zócalo se introduce en el semisótano.

-       Un semisótano enterrado un metro bajo el nivel de calle.

-       Un sótano totalmente enterrado al que se le introduce luz mediante las cajas de escaleras que conectan de forma vertical el edificio. 

El programa se organiza según dos parejas de dualidades principales: Por una parte, lo público y lo privado; y por otra, lo propio para el funcionamiento de las salas de teatro versus lo externo a ellas. 

La parte pública se distribuye gradualmente de cubierta al sótano en los espacios intersticiales a los auditorios, mientras que la parte privada se sitúa con accesos independientes y privados en la cara norte del edificio. 

Los auditorios, por otro lado, contienen una doble piel que los desvincula de los espacios comunes, funcionando cada uno de manera independiente. Esta doble piel se distancia de los niveles horizontales mediante un espacio vacío por el que se podrá apreciar la pieza de forma exenta a la vez que se introduce luz natural en los niveles inferiores. 

Para acceder a la caja escénica, los espectadores atravesarán el vacío mediante unas plataformas de acceso que los situarán en el interior de la doble membrana dónde se concentrarán los usos públicos asociados con el espectador. De la misma forma, en la parte trasera del escenario, la caja escénica está rodeada de programa técnico para su correcto funcionamiento, de manera que contiene 4 niveles independientes que funcionan como un gran hormiguero dentro de esa doble piel que se colmatan en la cubierta con programa cultural externo.

Entendiendo la necesidad para los habitantes de la ciudad y sus alrededores de un Teatro Municipal que concentre las actividades culturales más importantes del territorio cruceño, se contempla la posibilidad de llegar al equipamiento tanto con transporte público, como privado. 

Una vez en la parcela, las entradas son múltiples: Debido al programa de un Teatro Municipal, se necesitan entradas técnicas ubicadas perimetralmente bajo un gran zócalo, de manera que su visibilidad por el usuario se reduzca. 

Las entradas con transporte privado se harán directas a un parqueo ubicado bajo la cota 0, de manera que los accesos se realizarán mediante núcleos puntuales de comunicación vertical, desde la planta sótano, pasando por el zócalo que reúne las actividades principales, hasta la cubierta que concentra una plaza y algunas de las actividades más atractivas del edificio.

Se dispone, así mismo, de zonas controladas de entrada para los trabajadores, ubicadas en la pieza norte que reúne los usos internos del edificio y la mayor parte del programa.

El acercamiento más interesante al edificio se realiza a pie por su lado Sur- Este. Esta forma de aproximación, te da la escala imponente de un elemento vertical y multiforme atravesando una plataforma maciza aparentemente imposible de romper. Para acceder a esta plataforma, se deberá atravesar una primera plaza que conserva la mayor masa arbórea de la parcela. Esta plaza al aire libre, para asegurar su disfrute, quedará protegida del “Surazo” mediante la bajada del elemento másico central en la esquina Sur-Este.

Tras la plaza de entrada, unas pasarelas se presentarán a modo de puente para atravesar el desnivel existente entre la cota de calle y el zócalo elevado. 

Una vez dentro del basamento, la entrada queda marcada por la disposición a lado y lado de los dos auditorios y una plataforma elevada que deja una altura libre de casi 8 metros entre los espacios principales. 

El nuevo equipamiento que proponemos, por tanto, tiene múltiples formas de recorrerse, entenderse y visualizarse según la cercanía al edificio y el uso que hagas de él. 

Entendido desde fuera, el edificio se lee como una masa horizontal elevada, atravesada por un elemento trapezoidal que la sostiene y la mantiene en equilibrio sobre el suelo. 

Desde el interior, la experiencia del espectador que va a una función es diferente, se trata de atravesar mediante diferentes pasarelas y puentes las diferentes alturas y vacíos del proyecto. Una vez en el zócalo, sus dos losas parten el volumen principal para controlar la escala, pero mantiene una separación sobre el auditorio principal que te permite ver como este apoya sobre el suelo mediante una abertura perimetral. 

Al mismo tiempo, una plataforma de acceso superior controla y delimita los espacios de programa menor, para el usuario del barrio que accede a las aulas, salas de ensayo, etc. A la vez que libera el hall de entrada para crear una jerarquía espacial en las zonas de programa más importante.El semisótano, contiene un programa menos público pero a la vez importante e interesante, se sitúan recorridos y accesos secundarios y patios en los que hay relación vertical con el zócalo. 

Por último, la cubierta se cede a la ciudad. Teniendo en cuenta el crecimiento que Santa cruz está experimentando, se prevé que la ciudad traerá consigo la futura necesidad de conservar espacios públicos de calidad que esponjen el tejido hormigonado con texturas verdes y superficies arboladas. La propuesta que el equipamiento ofrece en este aspecto, es dotar a la zona de una plaza de contenido cultural, por lo que la biblioteca, el restaurante, las salas de exposiciones y el programa más público se sitúa en ella. 

En general, se trata de un edificio cuya escala corresponde a la magnitud e importancia del equipamiento que será para la ciudad de Santa Cruz conteniendo espacios fluidos, dentro 4 elementos rígidos que le dan escala y solemnidad a la propuesta, pero permitiendo usos diversos (exposiciones temporales, cafeterías, aulas, etc) en sus espacios intersticiales. 

Todo esto, se ha considerado teniendo en cuenta la viabilidad técnica y económica de la propuesta, que consideramos fundamental a la hora de realizar una propuesta de tal envergadura.

Con todo, el proyecto ha intentado ser coherente, llegando a un equilibrio entre el programa, la función y el uso, sin perder el concepto formal fundamental. 


LABORATORIO Y EXPOSITOR DE LÍNEA VERDE / 2015

Una empresa dedicada a la fabricación de productos de belleza naturales, nos pidió que adaptáramos una oficina de abogados en su laboratorio, que además debía contener un pequeño espacio administrativo, paralelamente debíamos crear un espacio para la exposición de sus productos en un centro de belleza integral muy conocido en el medio. 


VIVIENDA PLURIFAMILIAR / 2014

En uno de barrios más exclusivos de La Paz y con una vista privilegiada de la ciudad, dos hermanos nos pidieron que les diseñemos dos viviendas que debían compartir el mismo lote y algunas zonas de servicio y jardín.

La característica más importante del terreno es que se encuentra en la parte mas alta de una montaña, por lo que el mismo tiene una pendiente muy pronunciada, esto nos presentó algunos problemas pero también una oportunidad muy interesante, para que las viviendas tengan la misma vista y la misma cantidad de sol, se las diseñó en dos niveles distintos aprovechando la pendiente y quedaron unidas por un patio compartido.

Las viviendas tienen características de programa similares también comparten la zona de servicios y algunos otros espacios exteriores y pese a fueron concebidas como casas completamente distintas se consiguió que haya una unidad estética y volumétrica.

El conjunto habitacional logró mantener una escala pequeña, pese a la cantidad de espacios que se incorporaron y que no se rompió de forma agresiva la forma del terreno y su pendiente.


EDIFICIO PARA UN ESTUDIO Y UNA VIVIENDA / 2016

En una pequeño lote de 405 m2 en Calacoto, los clientes nos solicitaron que les diseñemos un edificio con unos requerimientos especiales, las dos primeras plantas debían contener el estudio y oficinas de una empresa audiovisual y los dos últimos la vivienda de los propietarios.

Ya que la normativa solo permitía cuatro plantas en esa zona y que todo el programa cabía perfectamente en ese espacio, se decidió no incorporar un sótano de parqueos para ahorrar en tiempo de ejecución de obra y presupuesto.

Los parqueos del edificio se encuentran en la primera planta del edificio y comparten espacio con las salas de edición y algunas oficinas de la empresa audiovisual, el ingreso del edificio también se encuentra en esa planta, se ingresa directamente al estudio por esa planta y a la vivienda por unas escaleras. En el segundo nivel se encuentra el estudio de grabación y algunos espacios complementarios de la empresa.

El departamento es un duplex de tres habitaciones, con un programa convencional pero muy espacioso, la estructura está diseñada de manera que no hayan columnas intermedias que puedan forzar la distribución de los espacios.

En las fachadas se decidió utilizar ventanas grandes y desordenadas que ayudan a romper la monotonía de los volúmenes, en todo el edificio se procuró utilizar materiales vistos, con terminado en bruto.

TIPO: Estudio Audiovisual / Vivienda

ESTADO: Proyecto

AÑO: 2016

ARQUITECTOS: Borja de Mesa, Diego Suarez


EDIFICIO DE OFICINAS CORPORACIÓN 7 / 2012

Este proyecto se inspiró en el crecimiento de la planta. Se llama brote a los nuevos crecimientos, que pueden incluir tallos, yemas y hojas. El brote de germinación de la semilla que crece hacia arriba es un brote que desarrollará hojas.

El proyecto Corporación 7 es una incubadora de empresas que busca favorecer el desarrollo de nuevos emprendimientos. Busca asegurar la continuidad de la estructura productivo – comercial así como sus necesarias inversiones.

Las torres fueron diseñadas buscando el máximo aprovechamiento del espacio, conectadas a través de espacios comunes de circulación y estancia, favoreciendo esto a nuevas relaciones empresariales y sinergias.

TIPO: Edificio de Oficinas

ESTADO: Proyecto

AÑO: 2012

ARQUITECTOS: Borja de Mesa, Diego Suarez, Martin Schulze, Adrian Vera



EDIFICIO EN KOANI / 2012

Pasando el puente de Koani en un pequeño lote de 320 m2, el cliente nos pidió el diseño de un edificio familiar de cinco plantas, en cada una debíamos incorporar un departamento.

La idea del edificio fue que las losas debían juntarse en la zona del ascensor para darle una sensación de verticalidad a un volumen que por las características del terreno y la normativa iba a ser muy alargado, se crearon fachadas completamente acristaladas dejando paneles opacos en color blanco en las zonas que que lo requieren, en todos los paneles de vidrio transparente restantes se instalaron filtros de colores rojo, azul y amarillo.

Finalmente el edificio no se construyó como lo planificamos y creemos que nuestro diseño quedo en anteproyecto, porque habían muchos detalles que debían tomarse en cuenta para poder construirlos, aún así estamos muy contentos con el resultado, el edificio quedó como un proyecto moderno y esbelto.

TIPO: Edificio Multifamiliar

ESTADO: Proyecto

AÑO: 2013

ARQUITECTOS: Borja de Mesa, Diego Suarez, Martin Schulze